bæredygtig byplan og boligprojekt på Samsø

 (teoretisk projekt)

Afgangsprojekt i samarbejde med Sune Aros Borch

Projektet blev delt op i en fælles analyse og

en individuel gennemarbejding af hver sin boligstruktur. 

ansvarlig for:

  • "Den blå længe" - boligstrukturen langs havnekanten og herunder:
  • formgivning og placering
  • planløsninger for i alt 22 boliger idenfor længen
  • materialevalg
  • disponering af energiforbrug, så længen opnår "passivhus"-standard

 

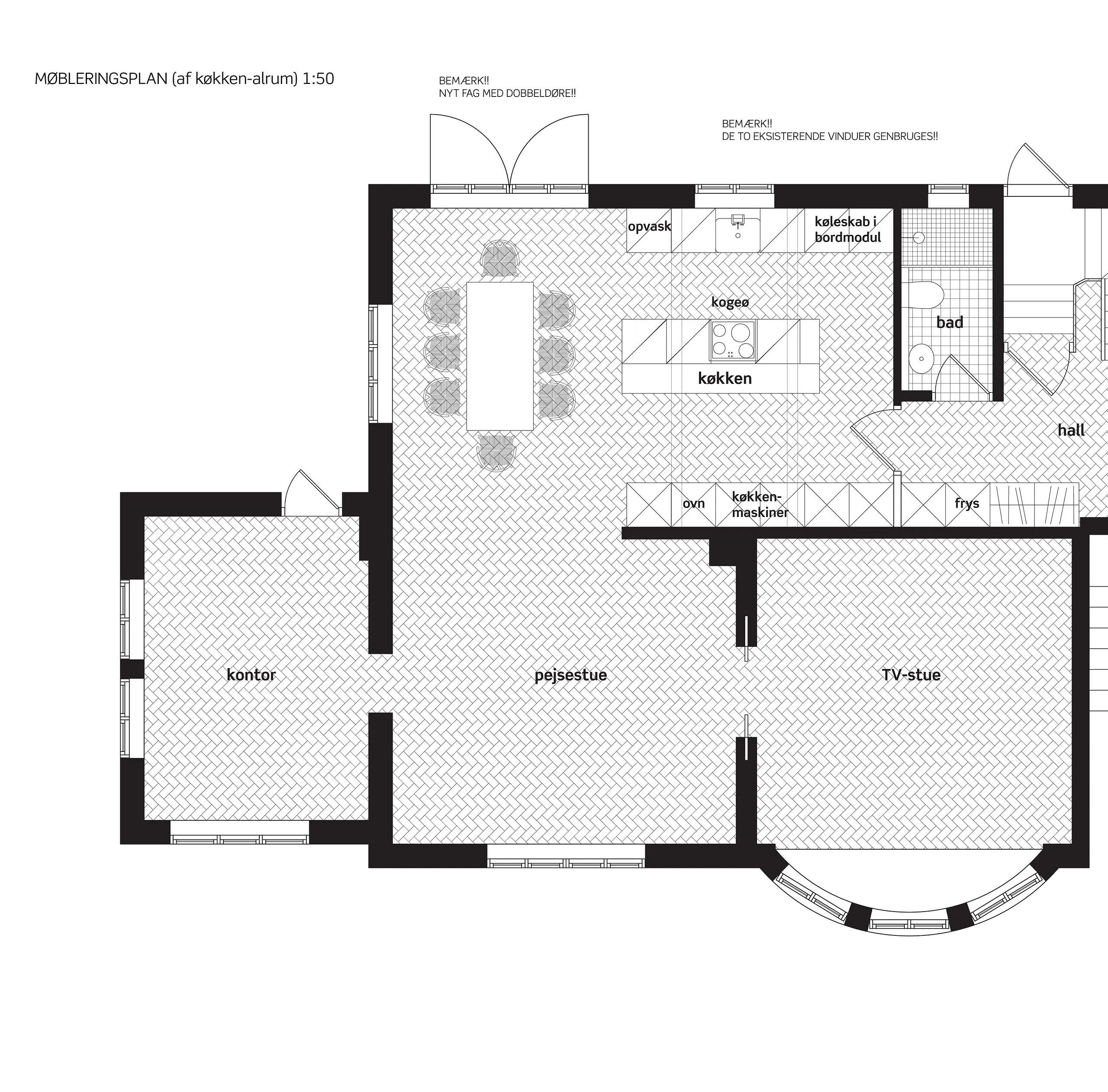
ombygning af køkken alrum

Ombygning af det primære leverum, køkken og spisestue. Det gamle køkken var lille, upraktisk og mørkt, og gennem ombygningen fik bygherre sammenlagt det gamle køkken og bad med stuen, så rummet nu opleves rummeligt, varmt og lyst og inviterer til familieliv!

ansvarlig for:

  • digitalisering og tegningsmateriale:

           (opmålning, skitsering af ideer, rummelig skitsering til bygherre)

Forår 2015

nedrivning af eksisterende køkken og videre detaljering af køkkenelementer og indretning 

HORNBERG køkken udført af snedker Daniel Møgelberg

 

 

Bryllups-styling af Samsø Bad

Oppyntning og omdannelse af festsalen på Samsø Bad

Sommer 2015

ansvarlig for:

  • konceptuelt kompendie til brudeparret (opmålning, skitsering af ideer og bordplaner)
  • Indkøb/søgning af div. materialer og effekter
  • Opsætning af dekoration, blomster, møblering og indretning på stedet

 

 

 

 

 

 

 

 

 

 

visuel identitet og tryksager for børnehave

herunder:

  • logo
  • velkomstbog
  • velkomstflyer
  • annoncering i lokalavis

 

 

 

 

beplantningsplan for have i Farum

Beplantningsplan for ca.200m2 have i samarbejde med anlægsgartner

ansvarlig for:

  • gennemgang af eksisterende have
  • anlægsplan
  • beplantningsliste 

 

 

 

 

 

 

 

indretning af Frederiksberg lejlighed

Nyindretning af stue, spisestue, soveværelse og børneværelse i samarbejde med familie

ansvarlig for:

  • designkoncept
  • planudvikling
  • materialevalg og interiørliste
  • 2 dages on-site indretning 

 

 

 

 

 

 

 

 

 

 

 

 

 

 

 

 

 

 

 

restaurantkoncept

(projektforslagt)

ca.300m2 restaurantdesign

delansvarlig for:

  • designkoncept
  • planudvikling
  • materialevalg

 

 

 

 

 

 

 

kontordesign Nike Garment, Shanghai

(realiseret projekt)

ca. 800m2 kontordesign

ansvarlig for:

  • designkoncept
  • planudvikling
  • materialevalg
  • kundekontakt og præsentation af designs
  • tilsyn under byggeri

 

 

 

 

 

 

 

Lidao Museum, Shanghai

(realiseret projekt)

ca.400m2 museum.

udstilling af historiske værdipapirer og antikviteter

ansvarlig for:

  • designkoncept
  • planudvikling
  • materialevalg
  • kundekontakt og præsentation af designs
  • tilsyn under byggeri